We provide architectural services for new construction and building-scale alteration projects, with an emphasis on technically rigorous design and execution in New York City and surrounding regions. We frequently collaborate with interior designers, developers, and consultants, with our role focused on building design, approvals, and construction coordination.
DEVELOPMENT / New Construction - Condominium Building: Downtown Brooklyn, NY
DEVELOPMENT / New Construction - Condominium Building: Greenpoint, Brooklyn, NY
COMMERCIAL / Karaoke: Long Island City, NY
COMMERCIAL / Retail Store, Lancaster, PA
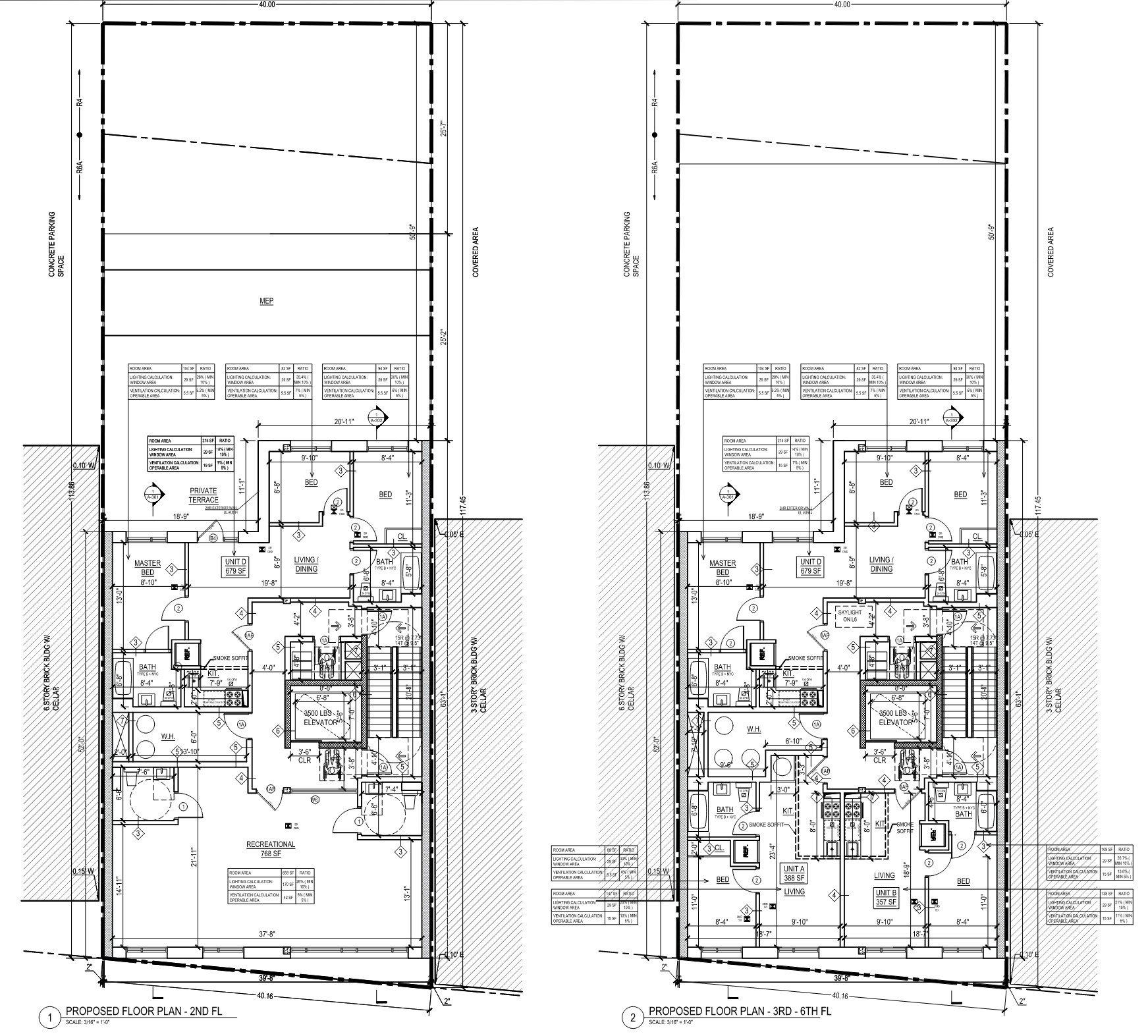
DEVELOPMENT / Alt-CO (NB) Condominium Building, Chelsea, NY
RESIDENTIAL / Co-op Apartment Renovation (AOR), Upper East Side, Manhattan, NY
COMMERCIAL / Nail Salon & Spa: Darien, CT
DEVELOPMENT / New Construction: Catskill, NY
RESIDENTIAL / Single Family Residence, Manhasset, Long Island, NY
COMMERCIAL / Restaurant: Long Island City, Queens, NY
COMMERCIAL / Restaurant Mechanical System: Long Island City, Queens, NY
RESIDENTIAL / Townhouse Expansion (Alt-CO): Rego Park, Queens, NY
COMMERCIAL / Food Court: Poughkeepsie, NY
COMMERCIAL / Tea Shop: Jersey City, NJ
RESIDENTIAL / Townhouse Alt-CO Renovation: Bay Ridge, Brooklyn, NY
RESIDENTIAL / New Construction - Single-Family Residence, Great Neck, Long Island, NY
RESIDENTIAL / Co-op Apartment (AOR), Upper West Side, Manhattan, NY
DEVELOPMENT / New Construction - Condominium Building, East Elmhurst, Queens, NY
DEVELOPMENT / Multi-Family Expansion (Alt-CO NB): Long Island City, Queens, NY
Contact
We work with homeowners, interior designers, developers, and contractors on new construction and alteration projects. Please contact us for project inquiries or consultations.